Добро пожаловать на http://vipplan.ru

Випплан Фролово - это тысячи проектов домов в нашем каталоге!

Вы всегда сможете найти для себя проект дома вашей мечты! Даже если этого не случилось, мы готовы в любую минуту предложить проект индивидуального дома.

Забыли пароль?
Вы еще не регистрировались?

Перейдите по ссылке ниже на страницу регистрации.

Регистрация...

Внимание!!!

В проектную документацию могут быть внесены изменения любой сложности, в соответствии в Вашими пожеланиями!

Полезные статьи

Применение свайных фундаментов

Сваи представляют собой длинные стержни, погруженные глубоко в грунт или изготовленные непосредственно в грунте. Покупные сваи с одной стороны имеют заостренный конец, который забивается в почву с помощью специальной техники. Установка свай, изготовленных своими руками, предполагают бурение скважин, армирование и заливку бетонного раствора. ...

Укладка тротуарной плитки

При укладке тротуарной плитки, необходимо соблюдать технологию, во избежание, разрушения и расшатывания покрытия. Первый этап - подготовка основания.  ...

Проекты домов и коттеджей > Каталог проектов домов > Проект дома с уютной террасой Vg993

Проект дома с уютной террасой Vg993

Проект дома с уютной террасой
Зарегистрируйтесь

Проект № Vg993


Техническое описание
Общая площадь: 106.27 м2
Жилая площадь: 70.4 м2
Высота здания: 7.23 м
Размеры дома: 15м×16м
Кол-во комнат: 4
Цокольный этаж: нет
Гараж: нет
Мансарда: нет

Kонструкция
Фундамент: Ленточный
Перекрытия: Деревянные балки
Материал стен: Газобетон

Архитектурный раздел
Конструктивный раздел
АР+КР - 48 000 (Со скидкой 20%)
Проект индивидуального одноэтажного жилого дома с размерами здания 14,86 x 16,14 м. Наружная отделка здания – фасадная штукатурка/ клинкерная плитка/ деревянные панели. Фундамент - ленточный монолитный ( под несущими стенами ) Наружные стены – газобетонные блоки с утеплителем пенополистерол, с отделкой фасадной штукатуркой, клинкерной плиткой и деревянными панелями. Внутренние стены - газобетонные блоки. Перегородки из кирпича. Снаружи вентканалы и дымоходы - клинкерная плитка. Перемычки - монолитные и сварные из профиля проката. Перекрытие чердачное - по деревянным балкам с использованием теплошумоизоляционных материалов типа "URSA" в межбалочном пространстве. Пол первого этажа - пол по грунту. Крыша двухскатая. Кровля – гибкая черепица. Окна - металлопластиковые, выполненные по индивидуальному заказу.
Генплан застройки участка / Паспорт проекта 7000 руб / 10000 руб
Инженерный раздел (полный) 53000 руб
Смета на строительство 26500 руб
Теплотехнический расчет материалов стен Бесплатно
Стоимость проекта со незначительнми изменениями 57350 руб
Стоимость проекта со средними изменениями* 65300 руб
Стоимость проекта со значительными изменениями** 67400 руб

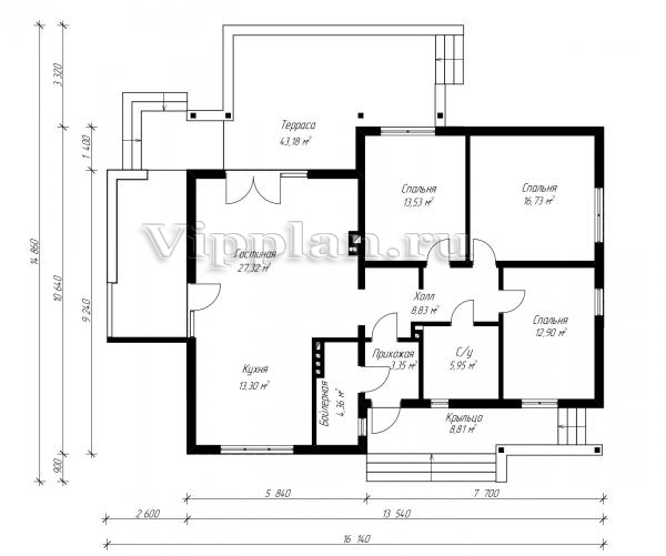
План первого этажа


Прихожая - 3,35 м2
Холл - 8,83 м2
Спальня - 13,53 м2
Спальня - 16,73 м2
Спальня - 12,90 м2
С/у - 5,95 м2
Гостиная - 27,32 м2
Кухня - 13,30 м2
Бойлерная - 4,36 м2
Проект дома с уютной террасой Проект дома с уютной террасой Проект дома с уютной террасой Проект дома с уютной террасой
Внесение изменений и привязка к участку строительства

В любой из проектов от компании VIPplan - Фролово по вашему желанию могут быть внесены изменения в материалы стен, материалы наружной отделки дома, а также будет произведена адаптация проекта под конкретный регион строительства (с учетом грунтов региона, геологических особенностей вашего участка и местных климатических условий) - БЕСПЛАТНО !!! (кроме проектов со скидкой и проектов наших партнеров).

Любой из проектов, размещенных на сайте frolovo.vipplan.ru мы можем выполнить из требуемых вам строительных материалов: ячеистый бетон (газобетон, пеноблок), керамоблок, кирпич, шлакоблок, бетонный блок, дерево (брус, клееный брус), каркасная технология (деревянный каркас, металлокаркас (ЛСТК)).

Фасад дома и его наружную отделку так же возможно выполнить с применением различных облицовочных материалов: структурной штукатурки, (с утеплителем и без), сайдингом (пластиковый или металлосайдинг), фиброплитами, кирпича.

 
6 Избранные
проекты

Доставка проектов по России: Москва (Московская область), Санкт-Петербург (Ленинградская область), Краснодар, Ростов-на-Дону, Ставрополь, Сочи, Волгоград, Новосибирск, Белгород, Брянск, Воронеж, Саратов, Хабаровск, Астрахань, Нальчик, Владикавказ, Екатеринбург, Тюмень, Самара, Нижний Новгород, Казань, Пермь, Уфа, Челябинск, Красноярск, Ханты-Мансийск, Иркутск, Курган, Оренбург, Омск, Томск, Барнаул, Новокузнецк, Кемерово, Абакан, Чита, Якутск, Южно-Сахалинск, Петропавловск-Камчатский и страны ближнего зарубежья: Белоруссия, Украина, Казахстан